Green City – G+9 Storied Residential Building at Magura
Green City – G+9 Storied Residential Building at Magura
Project Overview
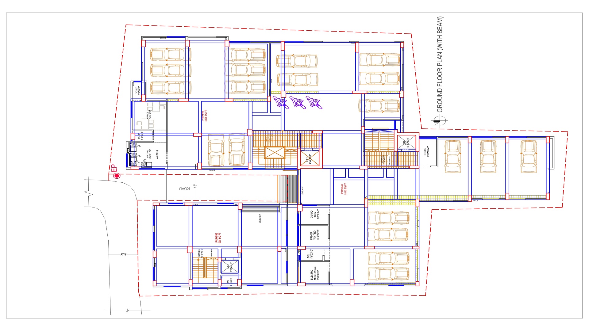
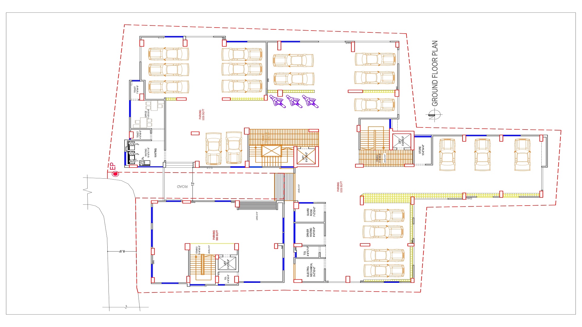
Green City is a modern 10-story (G+9) residential building in Magura, designed to offer sustainable, comfortable, and community-centric living spaces. The project emphasizes eco-friendly architecture, efficient space planning, and aesthetic harmony with the urban landscape of Magura.
Key Features & Design Approach
✔ Sustainable Living – Integration of green design principles, energy-efficient systems, and natural ventilation.
✔ Smart Space Utilization – Functional floor plans optimizing living areas, balconies, and communal spaces.
✔ Modern Aesthetics – Clean lines, contemporary façade treatments, and landscaped surroundings.
✔ Local Material Adaptation – Use of durable, locally available materials to reduce environmental impact.
✔ Safety & Comfort – Earthquake-resistant structural design and well-planned MEP (Mechanical, Electrical, Plumbing) systems.
Design Deliverables
• 2D Architectural Plans – Detailed floor layouts, sections, and elevation drawings.
• 3D Visualizations – Realistic renderings of interiors, exteriors, and site integration.
• Structural & MEP Coordination – Efficient systems for long-term sustainability.
Related Projects

G+7 Storied Residential Building at Cumilla
Client: Saiful Islam Location: Cumilla, Bangladesh Type: Residential Building (Ground + 7 Floors)

G+6 Storied Residential Building Noakhali
Client: Porimol Chandra Das Gong Location: Noakhali, Bangladesh Type: Residential Building (Ground...

G+3 Storied Residential Building at Barishal
Location: Barishal, Bangladesh Type: Residential Building (Ground + 3 Floors) Scope: Architectural...